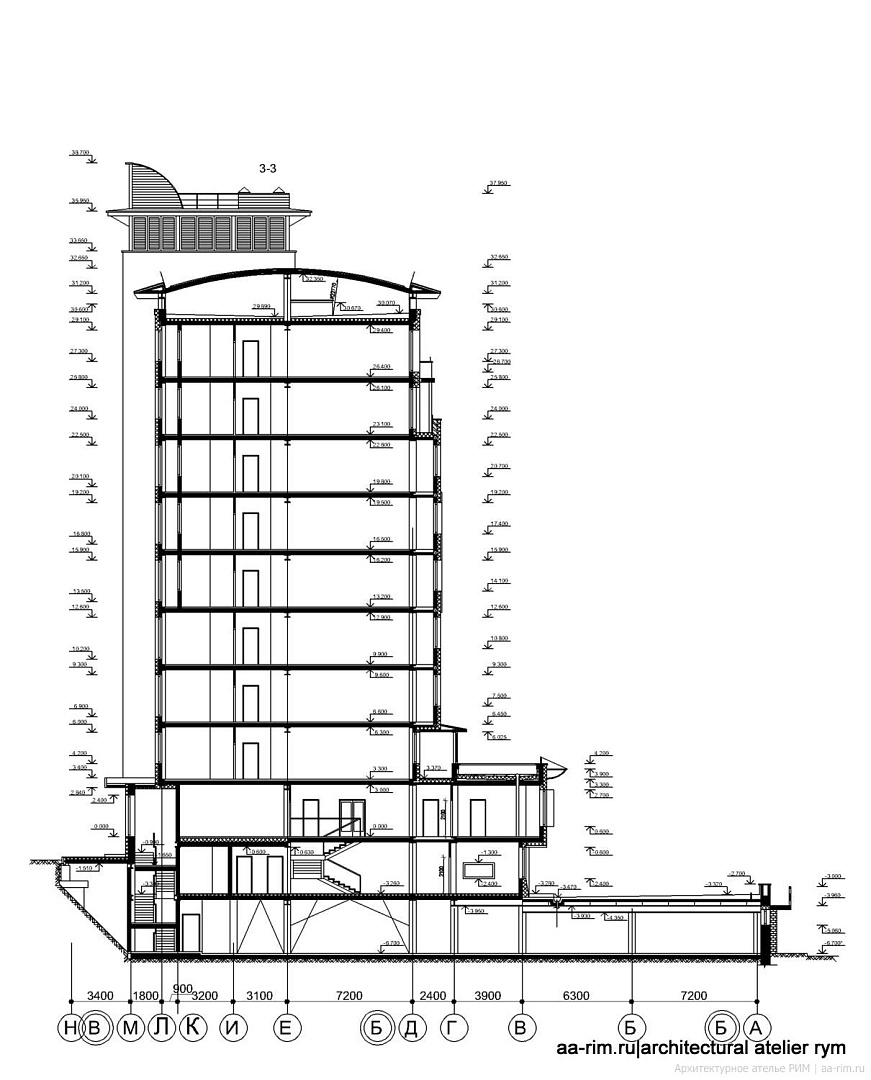
1 пусковой комплекс дома на Иртышской набережной
Проект
Проект
Дом на Иртышской набережной
Год
2004
Архитектор:
Фрейдин Олег
Кулагина Ольга
Инженер:
Зеленский А.В.
Визуализатор:
Казаков С.Б.
Услуги
Эскизный проект
Визуализация
Проектная документация
Авторский надзор за строительством
Направление
Жилые здания